
一、深井潜水泵产品概述
QJ型深井潜水泵是电机与水泵直联一体潜入水中工作的提水机具,深井潜水泵适用于从深井提取地下水、也可用于河流、水库、水渠等提水工程:主要用于农田灌溉及高原山区的人畜用水,亦可供城市、工厂、铁路、矿山、工地供排水使用。
二、QJ型深井潜水泵产品特点
1、电机、水泵一体,潜入水中运行,安全可靠。
2、对井管、扬水管无特殊要求(即:钢管井、灰管井、土井等均可使用;在压力许可下、钢管、胶管、塑料管等均可作扬水管使用)。
3、安装、使用、维护方便简单,占地面积小、不需建造泵房。
4、结构简单、节省原材料。
潜水电泵使用的条件是否合适,管理得当与使用寿命有直接的关系。
三、QJ型深井潜水泵型号意义:
四.QJ型深井潜水泵产品参数
| 型号 | 扬程参考 使用范围 (M) | 电机功率 (KW) | 额定电流 (A) | 出水管直径 (寸) |
| 150QJ10-50/7 | 40-55 | 3 | 7.9 | 2(67mm) |
| 150QJ10-100/14 | 80-110 | 5.5 | 13.7 | |
| 150QJ10-150/21 | 120-170 | 7.5 | 18.5 | |
| 150QJ10-250/34 | 200-250 | 13 | 30.87 | |
| 150QJ20-24/4 | 19-29 | 3 | 7.90 | |
| 150QJ20-30/5 | 24-36 | 3 | 7.90 | |
| 150QJ20-36/6 | 29-43 | 4 | 10.26 | |
| 150QJ20-42/7 | 34-50 | 4 | 10.26 | |
| 150QJ20-48/8 | 38-58 | 5.5 | 13.74 | |
| 150QJ20-54/9 | 43-65 | 5.5 | 13.74 | |
| 150QJ20-60/10 | 48-72 | 7.5 | 18.5 | |
| 150QJ20-66/11 | 53-79 | 7.5 | 18.5 | |
| 150QJ20-72/12 | 58-76 | 7.5 | 18.5 | |
| 150QJ20-78/13 | 62-94 | 7.5 | 18.5 | |
| 150QJ20-84/14 | 67-101 | 9.2 | 22.12 | |
| 150QJ20-90/15 | 72-108 | 9.2 | 22.12 | |
| 150QJ20-96/16 | 77-115 | 9.2 | 22.12 | |
| 150QJ20-102/17 | 82-122 | 11 | 26.28 | |
| 150QJ20-108/18 | 86-130 | 11 | 26.28 | |
| 150QJ20-114/19 | 91-137 | 11 | 26.28 | |
| 150QJ20-120/20 | 96-144 | 13 | 30.87 | |
| 150QJ20-126/21 | 101-151 | 13 | 30.87 | |
| 150QJ20-132/22 | 106-158 | 13 | 30.87 | |
| 150QJ20-138/23 | 110-166 | 13 | 30.87 | |
| 150QJ20-144/24 | 115-173 | 15 | 35.62 | |
| 150QJ20-150/25 | 120-180 | 15 | 35.62 | |
| 150QJ20-156/26 | 125-187 | 15 | 35.62 | |
| 150QJ20-162/27 | 130-194 | 15 | 35.62 | |
| 200QJ20-40/3 | 35-45 | 4 | 10.1 | |
| 200QJ20-54/4 | 45-58 | 5.5 | 13.6 | |
| 200QJ20-67-5 | 58-72 | 7.5 | 18 | |
| 200QJ20-81/6 | 72-86 | 7.5 | 18 | |
| 200QJ20-93/7 | 86-98 | 9.2 | 21.7 | |
| 200QJ20-108/8 | 98-115 | 11 | 25.8 | |
| 200QJ20-121/9 | 115-128 | 13 | 29.8 | |
| 200QJ20-133/10 | 120-140 | 15 | 33.9 | |
| 200QJ20-148/11 | 140-158 | 15 | 33.9 | |
| 200QJ20-175/13 | 153-190 | 18.5 | 41.6 | |
| 200QJ20-202/15 | 199-215 | 22 | 48.2 | |
| 200QJ20-243/18 | 220-250 | 25 | 54.5 | |
| 200QJ20-270/20 | 250-282 | 30 | 65.4 | |
| 200QJ20-297/22 | 280-315 | 30 | 65.4 | 2.5(83mm) |
| 200QJ20-338/25 | 315-350 | 37 | 79.7 | |
| 200QJ20-350/26 | 335-370 | 37 | 79.7 | |
| 200QJ20-363/27 | 350-385 | 37 | 79.7 | |
| 200QJ20-400/30 | 375-420 | 45 | 96.9 | |
| 200QJ20-450/34 | 425-470 | 45 | 96.9 | |
| 200QJ32-26/2 | 23-30 | 4 | 10.1 | |
| 200QJ32-39-3 | 35-45 | 5.5 | 13.6 | |
| 200QJ32-52/4 | 45-55 | 7.5 | 18 | |
| 200QJ32-65/5 | 55-73 | 11 | 25.8 | |
| 200QJ32-78/6 | 70-84 | 11 | 25.8 | |
| 200QJ32-91/7 | 80-105 | 13 | 29.8 | |
| 200QJ32-104/8 | 95-110 | 15 | 33.9 | |
| 200QJ32-130/10 | 120-137 | 18.5 | 41.6 | |
| 200QJ32-156/12 | 140-162 | 25 | 54.5 | |
| 200QJ32-195/15 | 180-215 | 30 | 65.4 | |
| 200QJ32-234/18 | 224-247 | 37 | 79.7 | |
| 200QJ32-247/19 | 234-255 | 37 | 79.7 | |
| 200QJ32-260/20 | 250-275 | 45 | 96.9 | |
| 200QJ32-286/22 | 275-300 | 45 | 96.9 | |
| 200QJ40-26/2 | 23-30 | 5.5 | 13.6 | |
| 200QJ40-39/3 | 35-45 | 7.5 | 18 | |
| 200QJ40-52/4 | 45-55 | 9.3 | 21.7 | |
| 200QJ40-65/5 | 55-73 | 11 | 25.8 | |
| 200QJ40-78/6 | 70-84 | 15 | 33.9 | |
| 200QJ40-104-8 | 95-110 | 18.5 | 41.6 | |
| 200QJ40-117/9 | 105-120 | 22 | 48.2 | |
| 200QJ40-143/11 | 130-145 | 25 | 54.5 | |
| 200QJ40-169/13 | 160-175 | 30 | 65.4 | |
| 200QJ40-208/16 | 200-215 | 37 | 79.7 | |
| 200QJ50-13/1 | 10-16 | 4 | 10.1 | 3(100mm) |
| 200QJ50-26/2 | 23-29 | 5.5 | 13.6 | |
| 200QJ50-39/3 | 35-43 | 9.2 | 21.7 | |
| 200QJ50-52/4 | 43-58 | 11 | 25.8 | |
| 200QJ50-65/5 | 58-75 | 15 | 33.9 | |
| 200QJ50-78/6 | 70-90 | 18.5 | 41.6 | |
| 200QJ50-91/7 | 80-110 | 22 | 48.2 | |
| 200QJ50-104/8 | 90-118 | 25 | 54.5 | |
| 200QJ50-117/9 | 100-130 | 30 | 65.4 | |
| 200QJ50-130/10 | 115-148 | 30 | 65.4 | |
| 200QJ50-156/12 | 142-180 | 37 | 79.7 | |
| 200QJ50-182/14 | 165-206 | 45 | 96.9 | |
| 200QJ50-195/15 | 185-220 | 45 | 96.9 | |
| 200QJ63-12/1 | 8-15 | 4 | 10.1 | |
| 200QJ63-24/2 | 19-30 | 7.5 | 18 | |
| 200QJ63-36/3 | 28-44 | 11 | 21.7 | |
| 200QJ63-48/4 | 38-58 | 15 | 33.9 | |
| 200QJ63-60/5 | 47-75 | 18.5 | 41.6 | |
| 200QJ63-72/6 | 56-88 | 22 | 48.2 | |
| 200QJ63-84/7 | 68-105 | 25 | 54.5 | |
| 200QJ63-96/8 | 76-118 | 30 | 65.4 | |
| 200QJ63-108/9 | 86-130 | 30 | 65.4 | |
| 200QJ63-120/10 | 95-142 | 37 | 79.9 | |
| 200QJ63-144/12 | 112-168 | 45 | 96.9 | |
| 200QJ80-11/1 | 8-13 | 4 | 10.1 | 4(133mm) |
| 200QJ80-22/2 | 16-25 | 7.5 | 18 | |
| 200QJ80-33/3 | 28-42 | 11 | 25.8 | |
| 200QJ80-44/4 | 40-50 | 15 | 33.9 | |
| 200QJ80-55/5 | 50-60 | 18.5 | 41.6 | |
| 200QJ80-66/6 | 60-70 | 22 | 48.2 | |
| 200QJ80-77/7 | 70-80 | 30 | 65.4 | |
| 200QJ80-88/8 | 80-95 | 37 | 79.7 | |
| 200QJ80-99/9 | 95-110 | 37 | 79.7 | |
| 200QJ80-121/11 | 110-140 | 45 | 96.9 | |
| 250QJ32-138/6 | 124-151 | 22 | 47.9 | 2.5(83mm) |
| 250QJ32-161/7 | 145-176 | 25 | 53.8 | |
| 250QJ32-184/8 | 166-202 | 30 | 64.2 | |
| 250QJ32-207/9 | 186-227 | 37 | 77.8 | |
| 250QJ32-230/10 | 207-252 | 37 | 77.8 | |
| 250QJ32-253/11 | 227-277 | 45 | 94.1 | |
| 250QJ32-276/12 | 248-302 | 45 | 94.1 | |
| 250QJ32-300/13 | 270-328 | 55 | 114.3 | 3(100mm) |
| 250QJ32-322/14 | 290-352 | 55 | 114.3 | |
| 250QJ32-345/15 | 310-370 | 63 | 130.9 | |
| 250QJ32-368/16 | 332-395 | 63 | 130.9 | |
| 250QJ32-391/17 | 352-420 | 63 | 130.9 | |
| 250QJ32-414/18 | 373-445 | 75 | 152.3 | |
| 250QJ32-437/19 | 394-468 | 75 | 152.3 | |
| 250QJ32-460/20 | 414-495 | 75 | 152.3 | |
| 250QJ32-483/21 | 435-510 | 90 | 182.8 | |
| 250QJ32-506/22 | 455-543 | 90 | 182.8 | |
| 250QJ32-529/23 | 476-568 |
|
|
|
| 250QJ32-552/24 | 498-588 | 90 | 182.8 | |
| 250QJ50-20/1 | 18-22 | 5.5 | 13.6 | |
| 250QJ50-40/2 | 37-45 | 9.2 | 21.7 | |
| 250QJ50-60/3 | 55-65 | 13 | 29.8 | |
| 250QJ50-80/4 | 75-85 | 18.5 | 41.6 | |
| 250QJ50-100/5 | 93-107 | 22 | 47.9 | |
| 250QJ50-120/6 | 113-127 | 25 | 53.8 | |
| 250QJ50-140/7 | 120-160 | 37 | 77.8 | |
| 250QJ50-160/8 | 151/170 | 37 | 77.8 | |
| 250QJ50-180/9 | 170-190 | 45 | 94.1 | |
| 250QJ50-200/10 | 190-210 | 45 | 94.1 | |
| 250QJ50-220/11 | 208-230 | 55 | 114.3 | |
| 250QJ50-240/12 | 220-260 | 55 | 114.3 | |
| 250QJ50-260/13 | 245-271 | 63 | 130.9 | |
| 250QJ50-280/14 | 265-291 | 63 | 130.9 | |
| 250QJ50-300/15 | 288-312 | 63 | 152.3 | |
| 250QJ50-320/16 | 308-332 | 75 | 152.3 | |
| 250QJ50-340/17 | 320-360 | 75 | 182.8 | |
| 250QJ50-360/18 | 355-380 | 90 | 182.8 | |
| 250QJ80-20/1 | 17-22 | 7.5 | 18 | 4(133mm) |
| 250QJ80-40/2 | 35/44 | 15 | 33.9 | |
| 250QJ80-60/3 | 52-66 | 22 | 47.9 | |
| 250QJ80-80/4 | 70-80 | 30 | 64.2 | |
| 250QJ80-100/5 | 87-110 | 37 | 77.8 | |
| 250QJ80-120/6 | 105-131 | 45 | 94.1 | |
| 250QJ80-140/7 | 122-153 | 55 | 114.3 | |
| 250QJ80-160/8 | 150/170 | 63 | 130.9 | |
| 250QJ80-180/9 | 170-197 | 63 | 130.9 | |
| 250QJ80-200/10 | 184-219 | 75 | 152.3 | |
| 250QJ80-220/11 | 210-230 | 90 | 182.8 | |
| 250QJ80-240/12 | 230-253 | 90 | 182.8 | |
| 250QJ100-18/1 | 15-22 | 7.5 | 18 | |
| 250QJ100-36/2 | 30-44 | 15 | 33.9 | |
| 250QJ100-54/3 | 44-60 | 25 | 53.8 | |
| 250QJ100-72/4 | 66-78 | 30 | 64.2 | |
| 250QJ100-108/6 | 110-116 | 45 | 94.1 | |
| 250QJ100-126/7 | 118-136 | 55 | 114.3 | |
| 250QJ100-144/8 | 136-152 | 63 | 130.9 | |
| 250QJ100-162/9 | 156-170 | 75 | 152.3 | |
| 250QJ100-198/11 | 188-208 | 90 | 182.8 | |
| 250QJ125-16/1 | 14-19 | 9.2 | 21.7 | 5(167mm) |
| 250QJ125-32/2 | 28-35 | 18.5 | 41.6 | |
| 250QJ125-48/3 | 42-54 | 25 | 53.8 | |
| 250QJ125-64/4 | 56-70 | 37 | 77.8 | |
| 250QJ125-80/5 | 72-90 | 45 | 94.1 | |
| 250QJ125-96/6 | 86-105 | 55 | 114.3 | |
| 250QJ125-112/7 | 102-120 | 63 | 130.9 | |
| 250QJ125-128/8 | 120-138 | 75 | 152.3 | |
| 250QJ125-144/9 | 134-156 | 90 | 182.8 | |
| 250QJ125-160/10 | 150-175 | 90 | 182.8 |
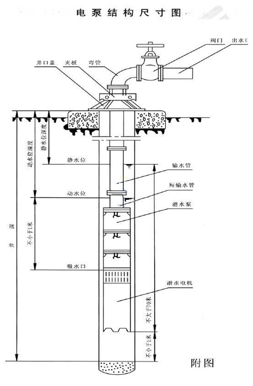
QJ型井用潜水电泵(深井泵)(结构图):
一、结构说明
1.QJ型潜水电泵机组由:水泵、潜水电机(包括电缆)、输水管和控制开关四大部分组成。潜水泵为单吸多级立式离心泵:潜水电机为密闭充水湿式、立式三相鼠笼异歩电动机,电机与水泵通过爪式或中.键筒式联轴器直接;配备有不同规格的三芯电缆:起动设备为不同容量等级的空气开关和自耦减压起动器、输水管为不同直径的钢管制成,采用法兰联接,高扬程电泵釆用闸阀控制。
2.潜水泵每级导流壳中装有一个橡胶轴承;叶轮用锥形套固定在泵轴上:导流壳采用嫘纹或螺栓联成一体。
3.高扬程潜水泵上部装有止回阀,避免停机水锤造成机组破坏。
4.潜水电机轴上部装有迷宫式防砂器和两个反向装配的骨架油封,防止流砂进入电机。
5.潜水电机采用水润滑轴承,下部装有橡胶调压膜、调压弹簧,组成调压室,调节由于温度引起的压力变化;电机绕组采用聚乙烯绝缘,尼龙护套耐水电磁线,电缆联接方式按QJ型电缆接头工艺, 把接头绝缘脱去刮净漆层,分别接好,焊接牢固,用生橡胶绕-层。再用防水粘胶带缠2~3层,外面包上2?3层防水胶布或用水胶粘结包一层橡胶带(自行车里胎〉以防渗水。
6.电机密闭,采用精密止口螺牷,电缆出口加胶塾进行密封。
7.电机上端有一个注水孔,有一个放气孔,卜部打个放水孔。
8.电机下部装有上卜—止推轴承,止推轴承上有沟槽用干冷却,和它对磨的是不锈钢推力盘,承爱水泵的上厂轴向力。